詳細內容:
一.KQ347F抗硫球閥 產品簡介:
QK系列抗硫球閥是根據用戶的需求,為滿足在硫化環境下的抗硫化就力裂化的要求,我們從設計,選材、制造、試驗、表面處理及涂漆都嚴格按美國腐蝕化工程師協會NACE的有關標準要求進行。
二.KQ347F抗硫球閥 工作原理:
QK系列抗硫球閥不僅選材廣泛且內件材料均采用表面鍍鎳或316材質、密封圈采用特制的聚合物材料。使閥門不僅防腐蝕,抗硫化能力強,防火、防靜電、密封性能好,適用壓力與溫度范圍廣,全通徑與縮經齊備,并可配多種驅動裝置,是化工、石油煉制、油氣開采與輸送系統理想的用閥選擇。
三.KQ347F抗硫球閥 產品特點:
1、抗硫化應力裂化:閥門接觸介質的材料都是按美國腐蝕工程師協會NACE01-75的標準進行選擇,且按標準進行表面鍍鎳,能滿足硫化環境工況的需求。
2、用聚合物或金屬作密封材料,在高溫、高壓工況具有優良的密封性能。
3、設置填料箱,防止閥門內腔壓力異常升高而使閥桿飛出,增置倒密封結構,能確保填料可靠密封。
4、廣泛適用于化工、煉油、油氣、天然氣、鋼鐵等介質管路。
|
公稱通徑:DN50-400mm 2"-16" 縮徑:DN50-450mm 2"-18" 公稱壓力:PN2.5-10.0MPa CLASS:150-900Lb 適用溫度:-196℃-300℃ 主要性能及規范公稱壓力 PN(MPa) |
試驗壓力(MPa) |
壓力級 |
試驗壓力(MPa) |
|
殼體 |
高壓液密封 |
低壓氣密封 |
殼體 |
高壓液密封 |
低壓氣密封 |
|
2.5 |
3.75 |
2.75 |
0.6 |
CLASS150 |
2.94 |
2.16 |
0.6 |
|
4.0 |
6.0 |
4.4 |
CLASS300 |
7.76 |
5.62 |
|
6.4 |
9.6 |
7 |
CLASS600 |
15.3 |
11.23 |
|
10.0 |
15 |
11 |
CLASS900 |
23 |
16.85 |
|
抗硫球閥型號、零件材料及主要參數主要型號
|
零件名稱 |
材質 |
|
碳鋼 |
低溫鋼 |
不銹鋼 |
|
QK4 1/7E QK34 1/7E QK64 1/7E QK94 1/7E |
閥體 |
A105 |
A350LF2 |
A182 F316 |
|
球體 |
A105+鍍鎳 |
A350LF2 |
A182 F316 |
|
閥桿、固定軸 |
45/40cr+鍍鎳 |
42CrMo+鍍鎳 |
A182 F316 |
|
閥座 |
A105+鍍鎳 |
A350LF2+鍍鎳 |
A182 F316 |
|
密封圈 |
增強聚四氟乙烯 對位聚苯 |
|
O型圈 |
氟橡膠 |
|
墊片、填料 |
柔性石墨 V型聚四氟乙烯 |
|
軸套 |
SF自潤滑軸承 |
|
螺栓 |
A193 B7M |
A193 B7M |
316 |
|
螺母 |
A194 2HM |
A194 7M |
316 |
|
應 用 規 范 |
結構長度按 |
GB12221-89 ANSI B16.10 |
|
法蘭尺寸按 |
JB79-59 GB9113 HG20592-9 ANSI B16.5 |
|
焊接標準按 |
GB12221-89 ANSI B16.25 |
|
檢驗試驗按 |
GB/T13927 JB/T9092-99 API598 |
|
防火試驗按 |
API 607 BS6755 II |

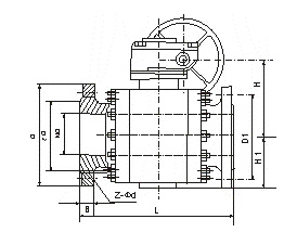
四.KQ347F抗硫球閥 外形尺寸:
|
壓力 |
通徑DN |
d1 |
L |
Lo |
D |
D1 |
D2 |
H |
H1 |
B |
z-Φd |
|
1.6MPa |
50 |
50 |
216 |
400 |
160 |
125 |
100 |
153 |
139 |
16 |
4-18 |
|
80 |
80 |
283 |
600 |
200 |
160 |
135 |
195 |
178 |
20 |
8-18 |
|
100 |
100 |
305 |
850 |
220 |
180 |
155 |
213 |
191 |
20 |
8-18 |
|
150 |
150 |
394 |
- |
285 |
240 |
210 |
535 |
184 |
24 |
8-23 |
|
200 |
200 |
457 |
- |
340 |
295 |
262 |
504 |
221 |
26 |
12-23 |
|
250 |
250 |
533 |
- |
405 |
355 |
320 |
608 |
258 |
30 |
12-25 |
|
300 |
300 |
610 |
- |
460 |
410 |
372 |
647 |
282 |
30 |
12-25 |
|
350 |
350 |
686 |
- |
520 |
470 |
435 |
813 |
352 |
34 |
16-25 |
|
400 |
400 |
762 |
- |
580 |
525 |
485 |
882 |
417 |
36 |
16-30 |
|
2.5MPa |
50 |
50 |
216 |
400 |
165 |
125 |
100 |
153 |
139 |
20 |
4-18 |
|
80 |
80 |
283 |
600 |
200 |
160 |
135 |
195 |
178 |
22 |
8-18 |
|
100 |
100 |
305 |
850 |
230 |
190 |
160 |
213 |
191 |
24 |
8-23 |
|
150 |
150 |
403 |
- |
300 |
250 |
218 |
525 |
184 |
30 |
8-25 |
|
200 |
200 |
502 |
- |
360 |
310 |
278 |
564 |
221 |
34 |
12-25 |
|
250 |
250 |
568 |
- |
425 |
370 |
332 |
729 |
268 |
36 |
12-30 |
|
300 |
300 |
648 |
- |
485 |
430 |
390 |
774 |
298 |
40 |
16-30 |
|
350 |
350 |
762 |
- |
555 |
490 |
448 |
813 |
352 |
44 |
16-34 |
|
400 |
400 |
838 |
- |
620 |
550 |
505 |
931 |
417 |
48 |
16-34 |
注:以上是產品介紹,參數,數據,如有任何疑問您可以致電給我們,我們一定會盡心盡力為您提供優質的服務,銷售部電話:0577-57993331 57993332 57993338