詳細內容:D971F4電動對夾式襯氟蝶閥敘述:
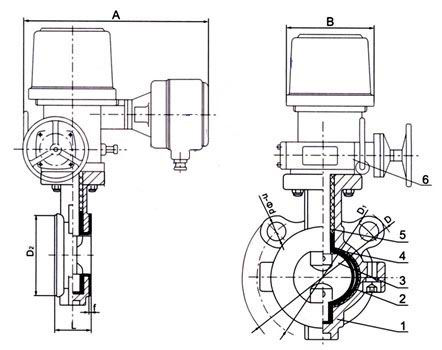
電動對夾式襯氟蝶閥是由電動執行器及襯氟蝶閥閥體組成,蝶閥是用閥桿一起轉動的蝶板作啟閉件,用以實現閥門的開啟,關閉與調節。
電動襯氟蝶閥是在過流部件、閥體、蝶板、閥桿上采用襯里技術襯里較厚的高分子材料,防腐蝕性能優良,耐腐蝕電動蝶閥可適用于任何濃度的酸、堿、鹽及氧化劑、還原劑、有機溶劑等介質,是化工、石油、醫藥、食品、鋼鐵冶煉、造紙、水電等系統的氣體、液體、半流體的管路和容器上作截流和調節設備使用的理想產品,并可取代閘閥、截止閥和其它類型的切斷、調節閥門。
本廠經營的電動襯氟蝶閥,具有耐腐蝕、無泄漏、壽命長等優點。電動襯氟蝶閥適用于濃硫酸、鹽酸、硝酸、氫氟酸及各種有機酸、強酸、氧化性介質或高溫烯硫酸、高溫濃醋酸、酸堿交替及多種有機溶劑和其它強腐蝕性介質。
D971F4電動襯氟蝶閥電動技術參數:
電動執行器選配:JRV、JRQ執行器
作用形式:普通開關型、調節型(4~20mA)
環境溫度:-30℃~ 70℃
電源電壓:AC220V、AC380V(其他定制AC24,AC110等)50/60Hz
防護等級:IP67、IP68可選
功能選項(可選)
防爆型:防爆等級:dⅡBT3/T4
信號反饋:有源信號、S無源信號
帶加熱器:可在潮濕環境中干燥執行器內元件(可選)
手動功能:電動執行器帶有手動開閥、關閥功能
調節型:輸入4~20mA信號,實現閥門調節功能
備注:電動執行器參數請另參考所選配的電動執行器資料.
D971F4電動襯氟蝶閥配置執行機構
|
執行器型號 |
DZW、HQ、CHR、381R |
|
主要技術參數 |
電源電壓:220V/50Hz、380V/50Hz、輸入信號:4-20mA或1-5V·DC、輸出信號:4-20mA·DC |
|
防護等級:相當IP67、隔爆標志:ExdⅡBT4、手操功能:手柄 |
|
|
注:如需詳細執行器參數,請進入電動執行器頁面進行查閱。
D971F4電動襯氟蝶閥主要零件材料
|
閥體、底座 |
球墨鑄鋼、鑄鋼、不銹鋼、全襯氟 |
|
蝶板 |
灰鑄鐵、球墨鑄鋼、鑄鋼、不銹鋼及特殊材料、全襯氟 |
|
密封圈 |
各種橡膠、聚四氟 |
|
閥桿 |
2Cr13、不銹鋼、全襯氟 |
|
填料 |
V型聚四氟乙烯填料、柔性石墨填料 |
D971F4電動襯氟蝶閥主要性能指標
|
公稱通徑DN(mm) |
50~1000 |
|
允許壓差(MPa) |
≤ 公稱壓力 |
|
動作范圍 |
0~90° |
|
泄露量 |
零泄露 |
|
基本誤差 |
±2.5% |
|
回差 |
±2.5% |
|
死區 |
1% (可調) |
D971F4電動襯氟蝶閥主要性能規范
|
公稱通徑DN(mm) |
50-1800 |
|
公稱壓力 |
PN(MPa) |
0.6 |
1.0 |
1.6 |
|
試驗壓力 |
強度試驗 |
0.9 |
1.5 |
2.4 |
|
密封試驗 |
0.66 |
1.1 |
1.76 |
|
低壓氣密試驗 |
0.6 |
0.6 |
0.6 |
|
適用介質 |
空氣、水、污水、蒸氣、煤氣、油品等。 |
