詳細內容:詳細內容:
一、ZJHF46-16C氣動襯氟調節閥 概述
ZJHF46-16C系列精小型氣動襯氟調節閥采用頂部導向結構,配用多彈簧執行機構,具有結構緊湊、重量輕、動作靈敏、流體通道呈S流線型、壓降損失小、閥容量大、流量特性精確、拆裝方便等優點。廣泛應用于精確控制氣體、液體等介質的工藝參數對壓力、流量、溫度、液位保持在給定值。特別適用于允許泄漏量小且閥前后壓差不大的場合。本系列產品有標準型、調節切斷型。產品公稱壓力等級有PN0.6、1.0、1.6、2.5、class 150LB;公稱通徑范圍DN20~300;使用溫度由-20℃~+200℃范圍內多種檔次;泄漏等級VI級,流量特性為線性或等百分比。
ZJHF46系列精小型氣動襯氟調節閥是氣動單元組合儀表中的執行單元,配用電—氣轉換裝置之后,也可進入電動單元組合儀表系統,他接受來自調節儀表的信號,直接改變調介質(如液體、氣體、蒸汽等)的流量,使被控工藝參數(如溫度、壓力、流量等)保持在給定值。
二、ZJHF46-16C氣動襯氟調節閥 結構特征與原理
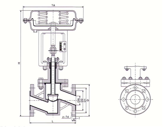
調節閥是由氣動薄膜執行機構與調節機構二部分組成,其結構與原理見下圖

三、ZJHF46-16C氣動襯氟調節閥 執行機構概述

執行機構是氣動調節閥生產過程自動控制系統的重要組成部分,其有正反兩種作用形式,當信號壓力增加,推桿伸出膜室的叫正作用,與閥配合構成氣關式(如圖2a)。當信號壓力增加,推桿推出膜室的叫反作用,與閥配合構成氣開式(如圖2b)。其原理:當信號壓力輸入膜室后,在膜片上產生推力,壓縮彈簧,使推桿移動,帶動閥桿,改變閥芯與閥座之間的流通面積,知道彈簧的反作用與信號壓力作用在膜片上的推力想平衡,從而達到自動調節工藝參數之目的。
四、ZJHF46-16C氣動襯氟調節閥 規格與技術參數
|
公稱通徑mm |
20 |
25 |
32 |
40 |
50 |
65 |
80 |
100 |
125 |
150 |
200 |
250 |
300 |
|
閥座直徑mm |
10 |
12 |
15 |
20 |
25 |
32 |
40 |
50 |
65 |
80 |
100 |
125 |
150 |
200 |
250 |
300 |
|
額定流量系數Kv |
直線 |
1.8 |
2.8 |
4.4 |
6.9 |
11 |
17.6 |
27.5 |
44 |
69 |
110 |
176 |
275 |
440 |
690 |
1100 |
1760 |
|
等百分比 |
1.6 |
2.5 |
4 |
6.3 |
10 |
16 |
25 |
40 |
63 |
100 |
160 |
250 |
400 |
630 |
1000 |
1600 |
|
公稱壓力MPa |
0.6、1.0、1.6、2.5 |
|
行程 mm |
10 |
16 |
25 |
40 |
60 |
100 |
|
膜片有效面積Ae(cm) |
280 |
400 |
630 |
1000 |
16000 |
|
流量特性 |
直線、等百分比 |
|
工作溫度 ℃ |
-30℃~+150℃ |
|
固有可調比R |
50:1 |
|
信號范圍Pr |
20~100、40~200、20~60、60~100、80~240 |
|
氣源壓力MPa |
0.14、0.4 |
|
允許壓差MPa |
不限帶定位器 |
5.3 |
3.7 |
23 |
13 |
0.85 |
0.74 |
0.47 |
0.30 |
0.27 |
0.18 |
0.11 |
0.12 |
0.08 |
0.05 |
0.04 |
0.03 |
|
帶定位器 |
6.4 |
6.4 |
5.5 |
3.01 |
2 |
1.7 |
1.1 |
0.71 |
0.63 |
0.41 |
0.26 |
0.28 |
0.20 |
0.11 |
0.08 |
0.05 |
|
接管螺紋 |
M16*15 |
五、ZJHF46-16C氣動襯氟調節閥 主要性能指標
|
項目 |
一般調節閥 |
中溫(柔性石墨填料)或波紋管密封調節閥 |
|
不帶定位器 |
帶定位器 |
不帶定位器 |
帶定位器 |
|
基本識差% |
±5 |
±1 |
±15 |
±4 |
|
回?? 差% |
±3 |
±1 |
±10 |
3 |
|
死?? 區% |
±3 |
±0.4 |
±8 |
1 |
|
始終點偏差% |
氣開 |
始點 |
±2.5 |
±1 |
±6 |
±2.5 |
|
終點 |
±5 |
±15 |
|
氣關 |
始點 |
±5 |
±15 |
|
終點 |
±5 |
±6 |
|
額定形成偏差% |
2.5 |
2.5 |
6 |
2.5 |
|
允許泄漏量 |
調節型L/h |
10-4×閥額定容量JP |
|
調節切斷閥 |
閥座直徑 |
20 |
25 |
40 |
50 |
65 |
80 |
100 |
150 |
200 |
250 |
300 |
|
允許泄漏量 |
軟密封:VI級 |
|
額定流量系數偏差% |
±10 |
|
固有流量特性偏差 |
符合IEC534-1976和GB/T 13927中規定的斜率要求 |
六、ZJHF46-16C氣動襯氟調節閥 主要零部件材料
|
零件名稱 |
材 料 |
|
閥體、閥蓋 |
HT200、ZG230~450、ZG1Cr18Ni9Ti |
|
襯里材料 |
F46、F4、F3、PO、PE、X、X3、PFA |
|
閥 芯 |
1Cr18Ni9Ti |
|
波紋管 |
F4 |
|
填 料 |
聚四氟乙烯、柔性石墨 |
|
彈 簧 |
60Si2Mn |
|
膜 蓋 |
A3 |
|
閥桿、推桿 |
2Cr13/1Cr18Ni9Ti |
|
襯 套 |
2Cr13 |
七、ZJHF46-16C氣動襯氟調節閥 主要連接尺寸

八、ZJHF46-16C氣動襯氟調節閥 主要技術參數
|
公稱通徑 |
標準值 |
參數值 |
|
DN(mm) |
PN1.0? PN1.6 |
|
L |
D |
D1 |
D2 |
f |
b |
Z—φd |
φA |
H |
|
15 |
130 |
95 |
65 |
45 |
2 |
14 |
4—φ14 |
282 |
487 |
|
20 |
150 |
105 |
75 |
55 |
2 |
16 |
4—φ14 |
282 |
487 |
|
25 |
160 |
115 |
85 |
65 |
2 |
16 |
4—φ14 |
282 |
493 |
|
32 |
180 |
135 |
100 |
78 |
2 |
18 |
4—φ18 |
282 |
524 |
|
40 |
200 |
145 |
110 |
85 |
3 |
18 |
4—φ18 |
308 |
530 |
|
50 |
230 |
160 |
125 |
100 |
3 |
20 |
4—φ18 |
308 |
538 |
|
65 |
290 |
180 |
145 |
120 |
3 |
20 |
8—φ18 |
394 |
686 |
|
80 |
310 |
195 |
160 |
135 |
3 |
22 |
8—φ18 |
394 |
706 |
|
100 |
350 |
215 |
180 |
155 |
3 |
22 |
8—φ18 |
394 |
726 |
|
125 |
400 |
245 |
210 |
185 |
3 |
24 |
8—φ18 |
498 |
969 |
|
150 |
480 |
280 |
240 |
210 |
3 |
24 |
8—φ23 |
498 |
969 |
|
200 |
600 |
335 |
295 |
265 |
3 |
26 |
8—φ23 |
498 |
1009 |
|
250 |
622 |
390 |
350 |
320 |
3 |
28 |
12—φ23 |
620 |
1353 |
|
300 |
698 |
440 |
400 |
368 |
4 |
28 |
12—φ23 |
620 |
1390 |