|
Q47F固定球閥主要零件材料: |
|
零件名稱 |
普通碳素鋼系列 |
不銹鋼系列 |
低溫鋼系列 |
抗硫系列 |
|
Gb標準 |
NACE標準 |
|
閥體、左體、底蓋 |
A216-WCB |
A351-CF8、CF8M、CF3、CF3M |
A352-LCB、LCC |
A216-WCB |
A351-CF8M |
|
球體 |
A216-WCB+HCr |
A351-CF8、CF8M、CF3、CF3M |
A352-LCB、LCC |
A216-WCB+HCr |
A351-CF8M |
|
閥座 |
PTFE;燒結碳纖維;金屬+橡膠組件 |
|
上、下閥桿 |
A182-F6a |
A182-F304、316 |
A182-6a |
318 |
A182-F316 |
|
閥座支承點 |
|
A182-F304、316 |
LF2·Zn |
A105·Zn |
A182-F316 |
|
閥桿填料 |
PTFE;碳纖維 |
|
上、下閥桿軸承、止推軸 |
金屬襯PTFE;燒結碳纖維 |
|
填料壓環(huán) |
A182-F6aA182-F6a |
A182-F304、316 |
A182-F6a |
A182-F6a |
A182-F316 |
|
彈簧 |
3yc-7 |
|
雙頭螺柱 |
A193-B7 |
A193-B8 B8M |
A320-17 |
A193-B7 |
A193-B7 |
|
螺母 |
A194-2H |
A193-8M |
A194-4 |
A194-2H |
A194-2H |
|
壓蓋 |
A216-WCB,A105 |
|
排污塞 |
A105 |
A182-F304、316 |
Lf2 |
A105 |
A182-F316 | |
|
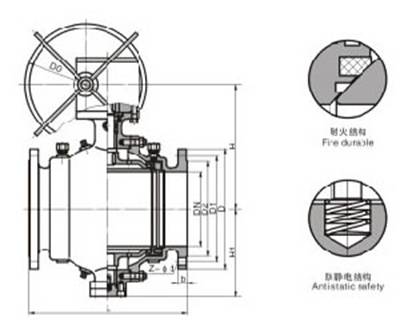
Q47F固定球閥主要連接尺寸:
■PN1.6MPa |
|
公稱通徑 |
50 |
65 |
80 |
100 |
125 |
150 |
200 |
250 |
300 |
350 |
400 |
450 |
500 |
600 |
700 |
800 |
900 |
1000 |
|
D1 |
51 |
64 |
76 |
102 |
127 |
152 |
203 |
254 |
305 |
337 |
387 |
438 |
489 |
591 |
686 |
781 |
876 |
978 |
|
L |
178 |
191 |
203 |
229 |
356 |
394 |
457 |
533 |
610 |
686 |
762 |
864 |
914 |
1067 |
1245 |
1372 |
1524 |
1753 |
|
H1 |
102 |
114 |
127 |
152 |
184 |
219 |
273 |
364 |
395 |
430 |
470 |
550 |
580 |
700 |
800 |
950 |
1100 |
1200 |
|
H2 |
107 |
125 |
152 |
178 |
300 |
330 |
398 |
495 |
580 |
625 |
670 |
698 |
840 |
1050 |
1100 |
1150 |
1247 |
1374 |
|
E |
|
|
|
|
|
|
116 |
116 |
171 |
171 |
257 |
257 |
257 |
150 |
83 |
83 |
123 |
123 |
|
F |
|
|
|
|
|
|
350 |
350 |
420 |
420 |
400 |
400 |
400 |
410 |
650 |
650 |
735 |
735 |
|
W |
230 |
400 |
400 |
650 |
1050 |
1050 |
600 |
600 |
800 |
800 |
800 |
800 |
800 |
800 |
800 |
800 |
800 |
800 |
|
W(kg) |
12 |
16 |
22 |
35 |
58 |
74 |
205 |
322 |
460 |
576 |
864 |
1280 |
1600 |
3450 |
450 |
5940 |
7540 |
9320 | |
|
■PN2.5MPa |
|
公稱通徑 |
50 |
65 |
80 |
100 |
125 |
150 |
200 |
250 |
300 |
350 |
400 |
450 |
500 |
600 |
700 |
800 |
900 |
1000 |
|
D1 |
51 |
64 |
76 |
102 |
127 |
152 |
203 |
254 |
305 |
337 |
387 |
438 |
489 |
591 |
686 |
781 |
876 |
978 |
|
L |
178 |
241 |
283 |
305 |
381 |
403 |
502 |
568 |
648 |
762 |
838 |
914 |
991 |
1143 |
1346 |
1524 |
1727 |
1880 |
|
H1 |
102 |
114 |
127 |
152 |
184 |
219 |
273 |
364 |
395 |
430 |
470 |
550 |
580 |
700 |
800 |
950 |
1100 |
1200 |
|
H2 |
107 |
125 |
152 |
178 |
300 |
330 |
389 |
495 |
580 |
625 |
670 |
698 |
840 |
1050 |
1100 |
1150 |
1247 |
1374 |
|
E |
|
|
|
|
|
|
116 |
116 |
171 |
171 |
257 |
257 |
257 |
150 |
83 |
83 |
123 |
123 |
|
F |
|
|
|
|
|
|
350 |
350 |
420 |
420 |
400 |
400 |
400 |
410 |
650 |
650 |
735 |
735 |
|
W |
230 |
400 |
400 |
650 |
1050 |
1050 |
600 |
600 |
800 |
800 |
800 |
800 |
800 |
800 |
800 |
800 |
800 |
800 |
|
W(kg) |
15 |
24 |
30 |
55 |
87 |
118 |
255 |
370 |
533 |
640 |
1030 |
1542 |
2100 |
4200 |
5300 |
7860 |
8684 |
10300 | |
|
■PN4.0MPa |
|
公稱通徑 |
50 |
65 |
80 |
100 |
125 |
150 |
200 |
250 |
300 |
350 |
400 |
450 |
500 |
600 |
700 |
800 |
900 |
1000 |
|
D1 |
51 |
64 |
76 |
102 |
127 |
152 |
203 |
254 |
305 |
337 |
387 |
438 |
489 |
591 |
686 |
781 |
876 |
978 |
|
L |
178 |
241 |
283 |
305 |
381 |
403 |
502 |
568 |
648 |
762 |
838 |
914 |
991 |
1143 |
1346 |
1524 |
1727 |
1880 |
|
H1 |
102 |
114 |
127 |
152 |
184 |
219 |
273 |
364 |
395 |
430 |
470 |
550 |
580 |
700 |
800 |
950 |
1100 |
1200 |
|
H2 |
107 |
125 |
152 |
178 |
300 |
330 |
389 |
495 |
580 |
625 |
670 |
698 |
840 |
1050 |
1100 |
1150 |
1247 |
1374 |
|
E |
|
|
|
|
|
|
116 |
116 |
171 |
171 |
257 |
257 |
257 |
150 |
83 |
83 |
123 |
123 |
|
F |
|
|
|
|
|
|
350 |
350 |
420 |
420 |
400 |
400 |
400 |
410 |
650 |
650 |
735 |
735 |
|
W |
230 |
400 |
400 |
650 |
1050 |
1050 |
600 |
600 |
800 |
800 |
800 |
800 |
800 |
800 |
800 |
800 |
800 |
800 |
|
W(kg) |
15 |
24 |
30 |
55 |
87 |
118 |
255 |
370 |
533 |
640 |
1030 |
1542 |
2100 |
4200 |
5300 |
7860 |
8684 |
10300 | |
|
■PN6.4MPa |
|
公稱通徑 |
50 |
65 |
80 |
100 |
150 |
200 |
250 |
300 |
350 |
400 |
500 |
600 |
700 |
|
D1 |
51 |
64 |
76 |
102 |
152 |
203 |
254 |
305 |
337 |
387 |
489 |
591 |
686 |
|
L |
292 |
330 |
356 |
406 |
495 |
597 |
673 |
762 |
826 |
902 |
1054 |
1232 |
1397 |
|
H1 |
114 |
124 |
133 |
159 |
250 |
294 |
395 |
445 |
500 |
530 |
660 |
800 |
900 |
|
H2 |
108 |
155 |
197 |
235 |
300 |
374 |
445 |
512 |
550 |
615 |
810 |
1010 |
1180 |
|
E |
|
|
|
116 |
116 |
171 |
171 |
257 |
257 |
257 |
150 |
83 |
123 |
|
F |
|
|
|
350 |
350 |
420 |
420 |
400 |
400 |
400 |
410 |
650 |
735 |
|
W |
650 |
650 |
650 |
600 |
600 |
800 |
800 |
800 |
800 |
800 |
800 |
800 |
800 |
|
W(kg) |
23 |
35 |
49 |
91 |
192 |
355 |
640 |
880 |
1100 |
1540 |
2800 |
5300 |
5700 | |
|
■PN10.0MPa |
|
公稱通徑 |
50 |
65 |
80 |
100 |
150 |
200 |
250 |
300 |
350 |
400 |
500 |
600 |
700 |
|
D1 |
51 |
64 |
76 |
102 |
152 |
203 |
254 |
305 |
337 |
387 |
489 |
591 |
686 |
|
L |
292 |
330 |
356 |
432 |
559 |
660 |
787 |
838 |
889 |
991 |
1194 |
1397 |
1549 |
|
H1 |
114 |
124 |
133 |
159 |
250 |
294 |
395 |
445 |
500 |
530 |
660 |
800 |
900 |
|
H2 |
108 |
155 |
197 |
235 |
300 |
374 |
445 |
512 |
550 |
615 |
810 |
1010 |
1180 |
|
E |
|
|
|
116 |
116 |
171 |
171 |
257 |
257 |
257 |
150 |
83 |
123 |
|
F |
|
|
|
350 |
350 |
420 |
420 |
400 |
400 |
400 |
410 |
650 |
735 |
|
W |
650 |
650 |
650 |
600 |
600 |
800 |
800 |
800 |
800 |
800 |
800 |
800 |
800 |
|
W(kg) |
35 |
38 |
55 |
102 |
232 |
390 |
710 |
960 |
1700 |
1970 |
3250 |
5800 |
6700 | |