請輸入產品關鍵字:
銷售熱線:86-0577-57993331
86-0577-57993332
86-0577-57993338
圖文傳真:86-0577-57993339
地址:永嘉縣甌北鎮東方工業區
|
|
| Z43H平板閘閥 |
 |
| 詳細內容: Z43H平板閘閥的詳細說明
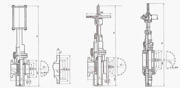
產品名稱:平板閘閥 平板閘閥適用于天然氣,石油,化工,環保,城市管道,燃氣管線等輸送管線,放空系統和汽儲存裝置上,用作啟閉設備。Z43型帶導流孔單閘板式平板閘閥適用于天然氣開采和凈化的長輸管線。 Z43H平板閘閥的特點: 1.閥座的密封結構應為彈性有預緊力,上、下游密封座同時密封的結構。閥座與密封物間始終為面對面密封。 2.閥座有自清洗功能,并且在閥門開啟或關閉過程中不受氣流的直接沖刷。閥座應由有潤滑、不磨損材料制成。 3.閥門執行機構的故障不會影響到閥門的其它部分,維修和更換工作能夠在不拆下閥門的情況下進行。 (1) 軛架套管 – 鋁青銅軛架套管配置針形止推軸承,最大程度減少操作扭矩。 (2) 閥桿 – 螺紋長度直到托架;銷釘和點焊;具有穩定性。 (3) 壓力密封 – 結構簡單,配置分段扣環和鍍銀低碳鋼墊圈,有助于拆卸和實現最好的閥帽密封。 (4) 閥座環 – 焊接閥座環垂直于流動通道,易于維護。 (5) 執行機構 – 這些閥門可以配置電動、液動或氣動執行機構。DN300以下配置標準手動手輪,DN350以上配置斜齒輪操作機構。 (6) 軛架 – 完全裝配式軛架通過抗震測試,易于維護和安裝執行機構。 (7) 壓蓋 – 兩件式,自調節壓蓋,避免被彈出。 (8) 整體后座 – 硬面,使用壽命最長。 (9) 閥瓣 – 彈簧負載閥瓣能夠自行調節,減少執行機構的扭矩需求。 (10) 整體止動 – 整體鑄造托架止動裝置,定位組裝的托架閥瓣,使得閥座更加穩定可靠。
 Z43H平板閘閥執行標準:
|
設計規范 |
結構長度 |
連接法蘭 |
試驗與檢驗 |
壓力-溫度 |
產品標識 |
|
JB/T5298 |
JB/T5298 |
JB/79 |
JB/T5298 |
GB9131 |
GB/T12220 |
|
API6D |
API6D |
ANSI-16.5 |
API6D |
ANSI B16.34 |
MSS SP-25 |
Z43H平板閘閥產口性能規范:
|
設計等級 |
常溫下試驗壓力(MPa) |
適用溫度℃ |
適用介質 |
|
殼體 |
左密封 |
左密封 |
低壓密封 |
“G”型 |
“D”型 |
普通型 |
“抗硫”型 |
“基本”型 |
|
公稱壓力PN(MPa) |
1.6 |
2.4 |
1.76 |
1.76 |
0.6 |
-29~50 |
-45~21 |
-2~121 |
H2S和CO2總含量大于500mg/m2的介質 |
石油天然氣、水等 |
|
2.5 |
3.75 |
2.75 |
2.75 |
0.6 |
|
4.0 |
6.0 |
4.4 |
4.4 |
0.6 |
|
6.4 |
9.6 |
7.04 |
7.04 |
0.6 |
|
磅級Lb |
150 |
3.0 |
2.2 |
2.2 |
0.6 |
|
300 |
7.7 |
5.6 |
5.6 |
0.6 |
Z43H平板閘閥主要零部件材料:
|
閥門/閥蓋 |
WCB |
WC6 |
A352-LCB |
A351-CF8M |
|
閘板 |
2Cr13+ENP |
20CrMoV+STL |
ANSO410+ENP |
ANSI316+ENP |
|
閥桿 |
2Cr13 |
2Cr13 |
A182-A6a |
A182-A316S |
|
閥座 |
25+PTFE |
20CrMoV+STL |
A105+PTFE |
A182-F316+PTFE |
|
填料 |
NBR/FPM |
柔性石墨/Flexible Graphite |
聚四氟乙烯/PTFE+FPM |
|
墊片 |
- |
|
螺栓 |
35 |
35CrMo |
A193-B7M |
A193-B8 |
|
適用介質 |
水、油口、蒸汽 |
蒸汽、油品 |
丙烷、乙烯 |
硝酸類 |

Z43H平板閘閥主要外形和連接尺寸PN1.6MPa-2.5MPa:
|
1.6MPa |
DN |
L |
D |
D1 |
D2 |
Do |
f |
b |
H |
H1 |
n-Φd |
|
凸面法法 RF (K)Z43WF-16C (K)Z543WF-16C (K)Z643WF-16C (K)Z943WF-16C |
50 |
178 |
160 |
125 |
100 |
250 |
3 |
16 |
584 |
80 |
4-Φ18 |
|
65 |
190 |
180 |
145 |
120 |
250 |
3 |
18 |
634 |
95 |
4-Φ18 |
|
80 |
203 |
195 |
160 |
135 |
250 |
3 |
20 |
688 |
100 |
8-Φ18 |
|
100 |
229 |
215 |
181 |
155 |
300 |
3 |
20 |
863 |
114 |
8-Φ18 |
|
125 |
254 |
245 |
210 |
185 |
350 |
3 |
22 |
940 |
132 |
8-Φ18 |
|
150 |
267 |
280 |
240 |
210 |
350 |
3 |
24 |
1030 |
150 |
8-Φ23 |
|
200 |
292 |
335 |
295 |
265 |
350 |
3 |
26 |
1277 |
168 |
12-Φ23 |
|
250 |
330 |
405 |
355 |
320 |
400 |
3 |
30 |
1491 |
203 |
12-Φ25 |
|
300 |
356 |
460 |
410 |
375 |
450 |
4 |
30 |
1701 |
237 |
12-Φ25 |
|
350 |
381 |
520 |
470 |
435 |
500 |
4 |
34 |
1875 |
265 |
16-Φ30 |
|
400 |
406 |
580 |
525 |
485 |
305 |
4 |
36 |
2180 |
300 |
16-Φ30 |
|
450 |
432 |
640 |
585 |
545 |
305 |
4 |
40 |
2440 |
325 |
20-Φ34 |
|
500 |
457 |
705 |
650 |
608 |
305 |
4 |
44 |
2860 |
360 |
20-Φ41 |
|
600 |
508 |
840 |
770 |
718 |
305 |
5 |
48 |
3450 |
425 |
20-Φ41 |
|
700 |
610 |
910 |
840 |
788 |
305 |
5 |
50 |
3960 |
460 |
24-Φ41 |
|
800 |
660 |
1020 |
950 |
898 |
305 |
5 |
52 |
4550 |
512 |
24-Φ41 |
|
900 |
711 |
1120 |
1050 |
998 |
250 |
5 |
54 |
5250 |
565 |
28-Φ48 |
|
1000 |
811 |
1250 |
1170 |
1110 |
250 |
5 |
56 |
5870 |
630 |
28-Φ18 |
|
2.5MPa |
50 |
178 |
160 |
125 |
100 |
250 |
3 |
20 |
584 |
80 |
4-Φ18 |
|
凸面法法 RF (K)Z43WF-25 (K)Z543WF-25 (K)Z643WF-25 (K)Z943WF-25 |
65 |
190 |
180 |
145 |
120 |
300 |
3 |
22 |
634 |
95 |
8-Φ18 |
|
80 |
203 |
195 |
160 |
135 |
350 |
3 |
22, |
388 |
100 |
8-Φ18 |
|
100 |
229 |
230 |
190 |
160 |
350 |
3 |
24 |
863 |
114 |
8-Φ23 |
|
125 |
254 |
270 |
220 |
188, |
350 |
3 |
28 |
940 |
132 |
8-Φ25 |
|
150 |
267 |
300 |
250 |
218 |
400 |
3 |
30 |
1030 |
150 |
8-Φ25 |
|
200 |
292 |
360 |
310 |
278 |
450 |
3 |
34 |
1277 |
168 |
12-Φ25 |
|
250 |
330 |
425 |
370 |
332 |
500 |
3 |
36 |
1491 |
203 |
12-Φ30 |
|
300 |
356 |
485 |
430 |
390 |
305 |
4 |
40 |
1701 |
237 |
16-Φ30 |
|
350 |
381 |
550 |
490 |
448 |
305 |
4 |
44 |
1875 |
265 |
16-Φ34 |
|
400 |
406 |
610 |
550 |
505 |
305 |
4 |
48 |
2180 |
300 |
16-Φ34 |
|
450 |
432 |
660 |
600 |
555 |
305 |
4 |
50 |
2440 |
325 |
20-Φ34 |
|
500 |
457 |
730 |
660 |
610 |
305 |
4 |
52 |
2860 |
360 |
20-Φ41 |
|
600 |
508 |
840 |
770 |
718 |
305 |
5 |
56 |
3450 |
425 |
20-Φ41 |
|
700 |
610 |
955 |
875 |
815 |
305 |
5 |
60 |
3960 |
460 |
24-Φ48 |
|
800 |
660 |
1070 |
990 |
930 |
305 |
5 |
64 |
4550 |
512 |
24-Φ48 |
|
900 |
711 |
1180 |
1090 |
1025 |
- |
5 |
66 |
5250 |
595 |
28-Φ54 |
|
1000 |
811 |
1305 |
1210 |
1140 |
- |
5 |
68 |
5870 |
660 |
28-Φ48 |
Z43H平板閘閥PN4.0MPa-10.0MPa:
|
4.0MPa |
DN |
L |
D |
D1 |
D2 |
Y |
Do |
f |
f2 |
b |
H |
H1 |
n-Φd |
|
凹凸法法 MFM (K)Z43WF-40 (K)Z543WF-40 (K)Z643WF-40 (K)Z943WF-40 |
50 |
250 |
160 |
125 |
100 |
88 |
250 |
3 |
4 |
20 |
584 |
80 |
4-Φ18 |
|
65 |
280 |
180 |
145 |
120 |
110 |
250 |
3 |
4 |
22 |
634 |
95 |
8-Φ18 |
|
80 |
310 |
195 |
160 |
135 |
121 |
250 |
3 |
4 |
22 |
679 |
102 |
8-Φ18 |
|
100 |
350 |
230 |
190 |
160 |
150 |
300 |
3 |
4.5 |
24 |
863 |
115 |
8-Φ23 |
|
125 |
400 |
270 |
220 |
188 |
176 |
350 |
3 |
4.5 |
28 |
940 |
133 |
8-Φ25 |
|
150 |
450 |
300 |
250 |
218 |
204 |
350 |
3 |
4.5 |
30 |
1040 |
152 |
8-Φ25 |
|
200 |
550 |
375 |
320 |
282 |
260 |
350 |
3 |
4.5 |
38 |
1282 |
188 |
12-Φ30 |
|
250 |
650 |
445 |
385 |
345 |
313 |
400 |
3 |
4.5 |
42 |
1495 |
223 |
12-Φ34 |
|
300 |
750 |
415 |
450 |
408 |
364 |
450 |
4 |
4.5 |
46 |
1701 |
250 |
16-Φ34 |
|
350 |
850 |
470 |
510 |
465 |
422 |
500 |
4 |
5 |
52 |
1880 |
280 |
16-Φ34 |
|
400 |
950 |
655 |
585 |
535 |
474 |
305 |
4 |
5 |
58 |
2200 |
310 |
20-Φ41 |
|
4501050 |
, 680 |
610 |
560 |
524 |
305 |
4 |
5 |
60 |
2480 |
335 |
20-Φ41 |
|
|
500 |
1150 |
755 |
670 |
612 |
576 |
305 |
4 |
5 |
62 |
2890 |
380 |
20-Φ48 |
|
600 |
1350 |
890 |
795 |
730 |
678 |
305 |
5 |
6 |
62 |
2480 |
450 |
20-Φ54 |
|
|
700 |
1450 |
995 |
900 |
835 |
768 |
305 |
5 |
6 |
68 |
3985 |
500 |
24-Φ54 |
|
800 |
1650 |
1135 |
1030 |
960 |
876 |
305 |
5 |
6 |
76 |
4750 |
570 |
24-Φ58 |
|
6.4MPa |
50 |
250 |
175 |
135 |
105 |
88 |
250 |
3 |
4 |
26 |
584 |
90 |
4-Φ23 |
|
凹凸法法 MFM (K)Z43WF-64 (K)Z543WF-64 (K)Z643WF-64 (K)Z943WF-64 |
65 |
280 |
200 |
160 |
130 |
110 |
250 |
3 |
4 |
28 |
634 |
105 |
8-Φ23 |
|
80 |
310 |
210 |
170 |
140 |
121 |
250 |
3 |
4 |
30 |
679 |
110 |
8-Φ23 |
|
100 |
350 |
250 |
200 |
168 |
150 |
300 |
3 |
4.5 |
32 |
763 |
130 |
8-Φ25 |
|
125 |
400 |
295 |
202 |
176 |
350 |
3 |
4.5 |
36 |
970 |
150 |
8-Φ30 |
- |
|
150 |
450 |
340 |
280 |
240 |
204 |
350 |
3 |
4.5 |
38 |
1038 |
175 |
8-Φ34 |
|
200 |
500 |
405 |
345 |
300 |
260 |
350 |
3 |
4.5 |
44 |
1282 |
210 |
12-Φ34 |
|
250 |
650 |
470 |
400 |
352 |
313 |
400 |
3 |
4.5 |
48 |
1495 |
240 |
12-Φ41 |
|
300 |
750 |
530 |
460 |
412 |
364 |
450 |
4 |
4.5 |
54 |
1965 |
270 |
16-Φ41 |
|
350 |
850 |
595 |
525 |
475 |
422 |
500 |
4 |
5 |
60 |
2185 |
300 |
16-Φ41 |
|
400 |
950 |
670 |
585 |
525 |
474 |
305 |
4 |
5 |
66 |
2573 |
335 |
16-Φ48 |
|
450 |
1050 |
715 |
630 |
570 |
524 |
305 |
4 |
5 |
68 |
2800 |
360 |
20-Φ48 |
|
500 |
1150 |
800 |
705 |
640 |
576 |
305 |
4 |
5 |
70 |
3280 |
405 |
20-Φ54 |
|
600 |
1350 |
930 |
820 |
750 |
678 |
305 |
5 |
6 |
76 |
380 |
470 |
20-Φ58 |
|
10.0MPa |
50 |
250 |
195 |
145 |
112 |
88 |
250 |
3 |
4 |
28 |
590 |
100 |
4-Φ25 |
|
凹凸法法 MFM (K)Z43WF-100 (K)Z543WF-100 (K)Z643WF-100 (K)Z943WF-100 |
65 |
280 |
220 |
170 |
138 |
110 |
250 |
3 |
4 |
32 |
640 |
115 |
8-Φ25 |
|
80 |
310 |
230 |
180 |
148 |
121 |
250 |
3 |
4 |
34 |
680 |
120 |
8-Φ25 |
|
100 |
350 |
265 |
210 |
172 |
150 |
300 |
3 |
4.5 |
38 |
870 |
135 |
8-Φ30 |
|
125 |
400 |
310 |
250 |
210 |
176 |
350 |
3 |
4.5 |
42 |
980 |
155 |
8-Φ34 |
|
150 |
450 |
350 |
290 |
250 |
204 , |
350 |
3 |
4.5 |
46 |
1100 |
180 |
12-Φ34 |
|
200 |
550 |
430 |
360 |
312 |
260 |
350 |
3 |
4.5 |
454 |
1315 |
220 |
12-Φ41 |
|
250 |
650 |
500 |
430 |
382 |
313 |
400 |
3 |
4.5 |
60 |
1605 |
255 |
12-Φ41 |
|
300 |
75 |
585 |
500 |
442 |
364 |
450 |
4 |
4.5 |
70 |
1925 |
295 |
16-Φ48 |
|
350 |
850 |
665 |
560 |
408 |
422 |
500 |
4 |
5 |
76 |
2280 |
335 |
16-Φ54 |
|
400 |
950 |
715 |
620 |
558 |
474 |
305 |
4 |
5 |
80 |
2580 |
360 |
16-Φ54 |
Z43H平板閘閥PN1.6MPa-10.0MPa:

|
|
|
|
|