詳細內容:鑄鐵滑閥概述
滑閥可安裝于各種水池或水井的管道上,功能同于鑄鐵鑲銅閘門,滑閥為手動操作,單向受壓,密封材質為銅合金,耐磨,面滑,開啟時有指針指示,直覺好。

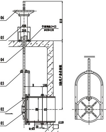
鑄鐵滑閥外形及連接尺寸表
|
尺寸
規格 |
D0 |
DN |
D1 |
D3 |
H |
H0 |
H1 |
H2 |
E |
d |
n-d1 |
|
HF300 |
Φ300 |
Φ440 |
Φ400 |
Φ290 |
1500~5000 |
1380 |
885 |
865 |
242 |
Φ42 |
12-Φ23 |
|
HF400 |
Φ400 |
Φ565 |
Φ515 |
Φ290 |
1500~5000 |
1480 |
885 |
1065 |
254 |
Φ42 |
16-Φ26 |
|
HF600 |
Φ600 |
Φ780 |
Φ725 |
Φ290 |
1500~5000 |
1680 |
885 |
1490 |
295 |
Φ42 |
20-Φ30 |
|
HF800 |
Φ800 |
Φ1010 |
Φ950 |
Φ300 |
2000~5000 |
2030 |
905 |
2225 |
400 |
Φ60 |
24-Φ34 |
|
HF1000 |
Φ1000 |
Φ1220 |
Φ1600 |
Φ300 |
2000~5000 |
2330 |
905 |
2305 |
345 |
Φ70 |
28-Φ34 |
|
HF1200 |
Φ1200 |
Φ1450 |
Φ1380 |
Φ300 |
2000~5000 |
2430 |
905 |
2595 |
355 |
Φ70 |
32-Φ41 |
鑄鐵滑閥訂貨須知
訂貨時請填寫《規格書》或注明以下內容:
一、若訂貨前還未選定型號,請向我們提供您的使用參數:1.公稱通徑、額定流量系數KV,
2.流體性質(包括公稱壓力、溫度、粘度或酸堿性),3.閥作用形式(電-關式或電-開式),4.流量特性,
5.閥前、閥后壓力,6.閥體、閥芯材料,7.輸入信號,8.是否帶附件,說明附件型號。以便我們的為您正確選型。
二、若已經由設計單位選定我公司的產品型號,請按型號直接向我司銷售部訂購;
三、當使用的場合非常重要或管路比較復雜時,請您盡量提供設計圖紙和詳細參數,由我們的專家為您審核把關。
感謝您光顧我們公司,如需了解更多請登錄www.lanrenadmin.com