詳細內容:TPO蝶閥概述
TPO蝶閥供水泥工業或其他工業為工藝設計時采用,有TPO-13、TPO-14系列,規格符合天津水泥工業設計院編印的“水泥工藝設計手冊”的要求。TPO 蝶閥普遍適用于建材、玻璃、礦山、電力、輕工、造紙等行業的通風、環保工程等管道系統中。 對管道中氣體介質按不同需要調節流量大小和切斷 。
TPO蝶閥結構特點:
TPO蝶閥 ,采用優質鋼材焊接。具有重量輕、結構合理、耐磨損、流阻損失小、操作靈活、指示方位明確、維護方便、使用壽命長等優點?蓪崿F任意角度安裝。配用手動拉桿,開關輕松自如 , 任意調節閥門開度 , 是調節流量的理想設備。
TPO蝶閥性能參數:
|
公稱壓力 |
介質流速 |
泄漏率 |
適用溫度 |
適用介質 |
|
0.05MPa |
≤ 25 m/s |
≤ 1.5% |
≤ 300 ℃ |
空氣、煙氣、粉塵氣體等 |
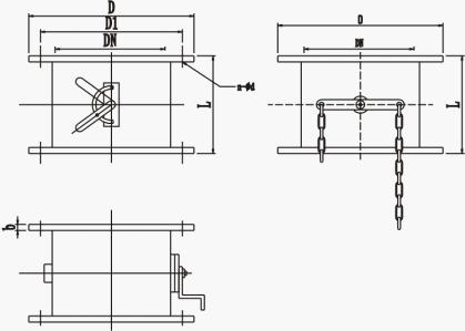
TPO蝶閥產品外形圖

TPO蝶閥主要連接尺寸
|
D |
H |
b |
D |
D1 |
d1 |
n |
重量 |
圖號 |
|
250 |
180 |
2 |
330 |
295 |
14 |
8 |
13.9 |
TPO-13 |
|
300 |
180 |
2 |
400 |
355 |
18 |
12 |
19.1 |
TPO-13 |
|
350 |
210 |
2 |
450 |
405 |
18 |
12 |
21.3 |
TPO-13 |
|
400 |
240 |
2.5 |
500 |
455 |
18 |
12 |
24.5 |
TPO-13 |
|
450 |
270 |
2.5 |
550 |
505 |
18 |
12 |
27 |
TPO-13 |
|
550 |
270 |
3 |
600 |
555 |
18 |
16 |
31.3 |
TPO-13 |
|
600 |
330 |
3 |
650 |
605 |
18 |
16 |
34.5 |
TPO-13 |
|
650 |
360 |
3 |
700 |
705 |
18 |
16 |
39.5 |
TPO-13 |
|
700 |
390 |
3 |
750 |
755 |
18 |
16 |
47.5 |
TPO-13 |
TPO蝶閥訂貨須知
訂貨時請填寫《規格書》或注明以下內容:
一、若訂貨前還未選定型號,請向我們提供您的使用參數:1.公稱通徑、額定流量系數KV,
2.流體性質(包括公稱壓力、溫度、粘度或酸堿性),3.閥作用形式(電-關式或電-開式),4.流量特性,
5.閥前、閥后壓力,6.閥體、閥芯材料,7.輸入信號,8.是否帶附件,說明附件型號。以便我們的為您正確選型。
二、若已經由設計單位選定我公司的產品型號,請按型號直接向我司銷售部訂購;
三、當使用的場合非常重要或管路比較復雜時,請您盡量提供設計圖紙和詳細參數,由我們的專家為您審核把關。
感謝您光顧我們公司,如需了解更多請登錄www.lanrenadmin.com