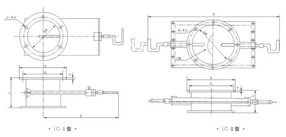
詳細內容:調節插板閥結構特點及用途:
調節插板閥結構簡單、操作自如、閥板采用優質碳素鋼板、滑動靈活、插抽省力、密封性良好、局部阻力損失小、維護保養拆裝方便、不易變形。本閥分為I型和II型用于通風除塵、風力輸送及排風系統管路上調節流量。II型主要用于固體粉料輸送的調節流量和切斷。
調節插板閥主要性能:
公稱壓力:0.05MPa
介質流速:≤8m/s
介質溫度:≤130℃
適用介質:I型為空氣、粉塵、氣體 II型為固體粉料、晶體料等

調節插板閥主要外形及連接尺寸表
|
DN |
D |
D1 |
b |
H |
L |
n-Φd |
重量Kg |
|
80 |
150 |
120 |
6 |
240 |
80 |
4-Φ10 |
36 |
|
90 |
160 |
130 |
255 |
60 |
|
100 |
170 |
140 |
270 |
98 |
|
110 |
180 |
150 |
285 |
110 |
|
120 |
190 |
160 |
300 |
100 |
6-Φ10 |
127 |
|
130 |
200 |
170 |
315 |
140 |
|
140 |
210 |
180 |
330 |
150 |
|
150 |
220 |
190 |
345 |
167 |
|
160 |
230 |
200 |
8 |
360 |
175 |
|
170 |
240 |
210 |
375 |
195 |
|
180 |
250 |
220 |
380 |
320 |
|
190 |
260 |
230 |
405 |
225 |
|
200 |
270 |
240 |
420 |
120 |
8-Φ10 |
236 |
|
210 |
280 |
250 |
435 |
248 |
|
220 |
290 |
260 |
450 |
262 |
|
230 |
300 |
270 |
460 |
280 |
調節插板閥訂貨須知
訂貨時請填寫《規格書》或注明以下內容:
一、若訂貨前還未選定型號,請向我們提供您的使用參數:1.公稱通徑、額定流量系數KV,
2.流體性質(包括公稱壓力、溫度、粘度或酸堿性),3.閥作用形式(電-關式或電-開式),4.流量特性,
5.閥前、閥后壓力,6.閥體、閥芯材料,7.輸入信號,8.是否帶附件,說明附件型號。以便我們的為您正確選型。
二、若已經由設計單位選定我公司的產品型號,請按型號直接向我司銷售部訂購;
三、當使用的場合非常重要或管路比較復雜時,請您盡量提供設計圖紙和詳細參數,由我們的專家為您審核把關。
感謝您光顧我們公司,如需了解更多請登錄www.lanrenadmin.com