詳細內容:鄂式閘門產品概述:
鄂式閘門具有結構簡單、操作方便、卸灰徹底、使用壽命長、啟閉靈活等特點。廣泛應用冶金、礦山、電力、建材、化工、輕工等行業。是種類落料系統的理想控制裝置。
鄂式閘門主要性能參數
|
型號規格 |
DEZ-50 |
|
公稱壓力 |
0.05MPa |
|
殼休試驗壓力 |
0.075MPa |
|
電源電壓 |
380V.50Hz |
|
驅動方式 |
電液動 氣動 手動 |
|
卸灰量 |
6-80m3/h |
|
適用溫度(℃) |
350 |
|
適用介質 |
干燥粉體物料、晶體料等 |
鄂式閘門主要零部件材料
|
零件名稱 |
閥體 |
閥板 |
閥桿 |
電液動裝置 |
|
材料 |
Q235-A |
Q235-A |
45#鋼 |
成品件 |
鄂式閘門結構特點
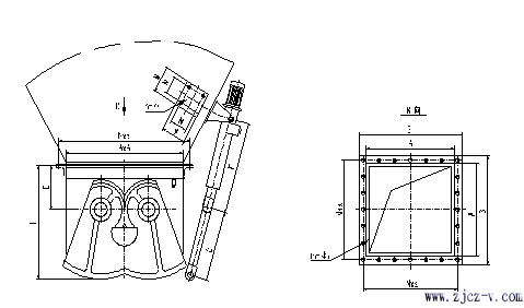
鄂式閘門主要由閥體、閥軸、扇形閥板、銷齒齒輪及曲柄機構、電液動推桿或(電動推桿、)組成,采用優質鋼板焊接結構、具有體積小、重量輕、阻力小。工作時,電液動推桿的直線往復運動,通過曲柄帶動閥軸齒輪,使兩個閥板作相對角度的擺動,從而達到控制物料之目的。
鄂式閘門產品主要連接尺寸
|
型號 |
主要尺寸 |
|
A |
B |
V |
D |
E |
F |
H |
M |
N |
N×a |
n1-φ1 |
n-φ |
|
DEZ-30Ⅰ(Ⅱ) |
300 |
400 |
180 |
156 |
100 |
400 |
300 |
320 |
260 |
2×180 |
8-14 |
4-28 |
|
DEZ-40Ⅰ(Ⅱ) |
400 |
500 |
240 |
156 |
120 |
460 |
360 |
2×230 |
|
DEZ-50Ⅰ(Ⅱ) |
500 |
626 |
290 |
240 |
150 |
510 |
480 |
3×190 |
12-18 |
|
DEZ-60Ⅰ(Ⅱ) |
600 |
726 |
340 |
240 |
180 |
560 |
600 |
3×224 |
|
DEZ-70Ⅰ(Ⅱ) |
700 |
850 |
390 |
320 |
220 |
610 |
660 |
4×198 |
16-22 |
|
DEZ-80Ⅰ(Ⅱ) |
800 |
950 |
440 |
320 |
240 |
660 |
760 |
4×222 |
鄂式閘門結構圖

鄂式閘門訂貨須知
訂貨時請填寫《規格書》或注明以下內容:
一、若訂貨前還未選定型號,請向我們提供您的使用參數:1.公稱通徑、額定流量系數KV,
2.流體性質(包括公稱壓力、溫度、粘度或酸堿性),3.閥作用形式(電-關式或電-開式),4.流量特性,
5.閥前、閥后壓力,6.閥體、閥芯材料,7.輸入信號,8.是否帶附件,說明附件型號。以便我們的為您正確選型。
二、若已經由設計單位選定我公司的產品型號,請按型號直接向我司銷售部訂購;
三、當使用的場合非常重要或管路比較復雜時,請您盡量提供設計圖紙和詳細參數,由我們的專家為您審核把關。
感謝您光顧我們公司,如需了解更多請登錄www.lanrenadmin.com