詳細內容:密閉式斜插板閥概述
密閉式斜插板閥適用于密閉性要求較高的除塵氣力輸送管道,調節或切斷物料流量的主要控制設備,具有結構簡單、重量輕、無卡阻、操作靈活等優點,廣泛地應用于冶金、礦山、建材、玻璃等行業系統中,控制物料的流量調節或切斷作用。
密閉式斜插板閥主要性能:
介質流速:≤8m/s 工作溫度:≤130℃
適用介質:無粘度的粉塵氣體、固體粉料、小顆粒物料。
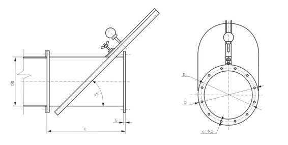
密閉式斜插板閥可水平或垂直安裝,但氣流方向必須和閥體上的箭頭方向一致,水平管道上插板應以45度順氣流安裝,在垂直管道(氣流向上)上插板以45度逆氣安裝。其公稱直徑指管道外徑值。

密閉式斜插板閥主要外形及連接尺寸表
|
型 號 |
1 |
2 |
3 |
4 |
5 |
6 |
7 |
8 |
9 |
10 |
11 |
12 |
|
DN |
100 |
125 |
140 |
150 |
180 |
200 |
210 |
220 |
250 |
280 |
300 |
350 |
|
D |
196 |
221 |
236 |
346 |
376 |
396 |
306 |
316 |
346 |
376 |
396 |
446 |
|
D1 |
156 |
181 |
196 |
206 |
236 |
256 |
266 |
276 |
306 |
336 |
356 |
406 |
|
N-Φd |
8-Φ10 |
8-Φ10 |
8-Φ10 |
8-Φ12 |
8-Φ12 |
8-Φ10 |
8-Φ12 |
8-Φ12 |
12-Φ14 |
12-Φ14 |
12-Φ14 |
12-Φ14 |
|
L |
280 |
300 |
320 |
330 |
360 |
380 |
390 |
400 |
430 |
460 |
480 |
590 |
|
b |
6 |
8 |
密閉式斜插板閥訂貨須知
訂貨時請填寫《規格書》或注明以下內容:
一、若訂貨前還未選定型號,請向我們提供您的使用參數:1.公稱通徑、額定流量系數KV,
2.流體性質(包括公稱壓力、溫度、粘度或酸堿性),3.閥作用形式(電-關式或電-開式),4.流量特性,
5.閥前、閥后壓力,6.閥體、閥芯材料,7.輸入信號,8.是否帶附件,說明附件型號。以便我們的為您正確選型。
二、若已經由設計單位選定我公司的產品型號,請按型號直接向我司銷售部訂購;
三、當使用的場合非常重要或管路比較復雜時,請您盡量提供設計圖紙和詳細參數,由我們的專家為您審核把關。
感謝您光顧我們公司,如需了解更多請登錄www.lanrenadmin.com