詳細內容:一、ZJHG氣動隔膜調節閥概述
氣動隔膜調節閥由隔膜調節閥和氣動薄膜執行機構兩部分組成,它以壓縮空氣為動力,實與對工藝管道中流體介質流量的調節。采用隔膜與閥體間“山”形凸出面進行密封,與外界隔離(無填料函),閥體流路簡單、平滑、可覆蓋防腐層,特別適用于要求耐腐蝕、劇毒場院合。
二、ZJHG氣動隔膜調節閥應用
氣動隔膜調節閥由于在結構上采用帶有耐腐蝕襯里的閥體和耐腐蝕的隔膜、無填料函結構、節流元件為彈性隔膜、閥體流道平滑,故氣動隔膜調節閥具有阻力小、流量大、無外漏和方便可靠、防火防爆的優點,廣泛適用于工業自動化系統中的強酸、強堿、強腐蝕、高粘度、含顆粒、帶纖維以及有毒和不允許污染的介質的流量調節。如現場沒有氣源可以選擇同類型的電動隔膜調節閥代替使用。
三、ZJHG氣動隔膜調節閥執行機構
氣動隔膜調節閥采用多彈簧執行機構,高度及重量均可減少30%;閥體內表面多種材料涂覆層,避免介質直接接觸,承受強腐蝕性介質的腐蝕;閥門關閉時,內、外泄漏量為零,特別適合于劇毒介質或不允許污染介質的調節;閥體流路簡單,阻力小,額定流量系數比同口徑單座,套筒調節閥大。
四、ZJHG氣動隔膜調節閥零件材料
閥體:HT200,ZG230~450或上述材質襯里
隔膜:丁荃膠、天然膠、聚四氟乙烯
閥蓋:ZG230~450
波紋薄膜:ding腈橡膠夾增強滌綸織物
彈簧:60SiMn
五、ZJHG氣動隔膜調節閥技術參數
|
公稱通徑DN(mm) |
20 |
25 |
32 |
40 |
50 |
65 |
80 |
100 |
125 |
150 |
200 |
|
額定流量系數KV |
無襯里 |
9.8 |
19 |
32 |
48 |
63 |
108 |
158 |
270 |
360 |
518 |
1114 |
|
有襯里 |
7.8 |
17 |
28 |
41 |
55 |
87 |
127 |
240 |
311 |
415 |
1121 |
|
額定行程L(mm) |
8 |
10 |
12 |
16 |
24 |
30 |
34 |
36 |
44 |
55 |
65 |
|
膜片有效面積Ae(cm2)) |
280 |
400 |
600 |
1000 |
|
公稱壓力PN(mm) |
0.6 1.0 |
|
固有流量特性 |
近似等百分 |
|
工作溫度(℃) |
≤150 |
|
信號范圍Pr(KPa) |
20~100 40~200 400~600 |
|
允許泄漏量 |
在允許壓差范圍內泄漏量為零 |
注:本表中所列執行機構為標準配置,可根據工藝要求選配
六、ZJHG氣動隔膜調節閥性能指標
|
項 目 |
不帶閥門定位器 |
帶閥門定位器 |
|
基本誤差% |
±10 |
±1 |
|
回 差% |
≤8 |
≤1 |
|
死 區% |
≤6 |
≤0.4 |
|
泄漏量 |
有襯里10×閥額定容量、無襯里5×10×閥額定容量 |
|
額定流量系數誤差% |
10 |
七、ZJHG氣動隔膜調節閥隔膜材質及適用
|
隔膜材質 |
使用溫度 |
適用介質 |
|
丁荃膠(B級) |
-40~+100 |
大部分無機酸如:硫酸、氫氟酸、磷酸等適用,耐蝕性好,同時而各種堿和鹽類 |
|
天然膠(Q級) |
-50~+100 |
主要用于凈化水、無機鹽和稀的礦物酸介質 |
|
聚四氟乙烯 |
-10~+150 |
極優的化學穩定性、耐強酸、強堿、強氧化劑的腐蝕 |
八、ZJHG氣動隔膜調節閥閥體襯里材質及適用
|
閥體襯里 |
使用溫度(℃) |
適用介質 |
|
無襯里 |
-10~+175 |
適用于非腐蝕性介質 |
|
軟橡膠 |
-10~+85 |
有很好的耐腐蝕、耐磨性能,適用于水泥、粘土、煤塵、干燥化肥等 |
|
硬橡膠 |
-10~+85 |
適用于無機堿、鹽類、鹽酸、鍍金屬溶液、軟水、氟化物、氯氣等 |
|
氯丁膠 |
-10~+105 |
適用于動物油、植物油和潤滑油,PH值變化范圍很大的腐蝕性泥漿?鼓p性能良好 |
|
丁荃膠 |
-10~+120 |
防腐性能和耐磨性能良好,對大部分無機酸性灰漿的耐磨蝕性能最好 |
|
搪瓷 |
-10~+175 |
適用于濕無機酸、氧化酸、鹵素、醇類、酯類等化合物 |
|
氟46 |
-20~+190 |
適用于硫酸、鹽酸、氫氧化鈉等強腐蝕介質。 |
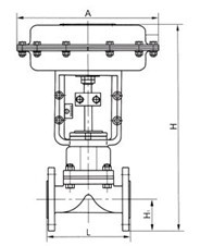
九、ZJHG氣動隔膜調節閥外形尺寸

|
公稱通徑DN(mm) |
L |
A |
H1 |
H |
G(Kg) |
|
20 |
150 |
280 |
52.5 |
400 |
21 |
|
25 |
160 |
280 |
57.5 |
408 |
23.5 |
|
32 |
180 |
280 |
67.5 |
418 |
28 |
|
40 |
200 |
308 |
75 |
464 |
33.5 |
|
50 |
230 |
308 |
82.5 |
487 |
38 |
|
65 |
290 |
394 |
90 |
520 |
65 |
|
80 |
310 |
394 |
100 |
530 |
73 |
|
100 |
350 |
394 |
110 |
550 |
94 |
|
125 |
400 |
498 |
135 |
575 |
160 |
|
150 |
480 |
498 |
150 |
590 |
195 |
|
200 |
600 |
498 |
190 |
630 |
290 |