詳細內容:
Q941F電動調節球閥產品概述
Q941F電動調節球閥是一種(球體)繞垂直于通道軸旋轉90°的閥門,其由回轉型角行程電子式電動執行器和O型閥結構組成,屬旋轉類型高性能調節或開關閥類,接受工業自動化控制(DCS、PLC系統)儀表來源的電流信號或電壓信號的輸入輸出,可實現對工藝管路中流體介質的比例調節或二位開關控制,從而達到對流體介質的流量、壓力、溫度、液位等參數的自動化控制
產品特點
1.Q941F電動調節球閥流體阻力小,是所有閥類中流體阻力最小的一種,以AC220V、AC380V或DC24V電源電壓作動力,接受(4-20mA、0-10mA或1-5VDC)電流信號或電壓信號,即可控制運轉,以角行程輸出的扭矩轉動球體0~90°,就能完成啟閉動作或調節動作。
2.全電子式電動執行機構,采有機電一體化結構,具有機內伺服操作和開度信號位置反饋、位置指示、手動操作等功能,功能強、性能可靠、連線簡單,通過輸入電流信號或電壓信號,改變球芯的旋轉角度(0-90°任意角度),實現比例調節動作。
3.球芯通道平整光滑,不易沉積介質,可以進行管線式通球。結構簡單、重量輕、密封性能好。 特別適用于要求零泄漏率的場合。
|
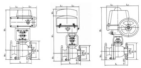
Q941F電動調節球閥產品結構 |
|
產品名稱 |
電動球閥 |
|
作用形式 |
開關型 調節型 |
|
連接形式 |
法蘭式 對夾式 管螺紋式 |
|
結構形式 |
O型浮動球式 |
O型固定球式 |
|
閥座密封形式 |
軟質密封 |
硬質合金密封 |
軟質密封 |
硬質合金密封 |
|
|
|
|
| | |
(a).O型浮動球式結構;軟質閥座:雙斜面彈性(聚四氟乙烯或對蒞聚苯)閥座密封圈。
硬質閥座:采用圓柱形彈簧加載的金屬(硬質合金鋼)硬密封圈閥座。
有效的降低了球與密封圈之間的磨擦系數,減少了操作力矩。當介質壓力較小時,密封圈與球體接觸面較小,故有較大的密封比壓,確?煽棵芊,當介質壓力較大時,密封圈與球體接觸面積也相應增大,故閥座密封圈能承受較大的介質推力而不會損壞,確?煽棵芊。
(b)。O型固定球式結構;軟質閥座:雙斜面彈簧加載(聚四氟乙烯或對蒞聚苯)彈性閥座密封圈。
硬質閥座:采用圓柱形彈簧或波形彈簧預載的補嘗性可動金屬(硬質合金鋼)硬密封閥座。
具有密封預緊力設計合理,密封性能可靠,根據壓力大小,介質性質及密封要求的不同可選擇進口密封結構、出口密封結構或進出口雙密封結構。球體由安裝在閥體上的上下兩個軸承支持,球體的位置固定,密封作用是靠彈簧和介質壓力推動閥座實現,因而閥座不會承受過大壓力,閥座密封不易變形,操作力矩輕,使用壽命長。
電動執行器
HL型、3810R型或PSQ型角行程全電子式電動執行機構是O型球閥的驅動裝置,采用一體化結構設計,它以AC220V電源電壓作動力,直接接受統一標準信號(4-20mA、0-10mA或1-5VDC、0-10V DC),將此轉變成與輸入信號相對應的位移,以角度位移(0~90°)運動,改變閥芯的開度,因此一定的輸入信號對應一定的位置開度,實現比例動作。二位開關式接受AC220V或AC380V作動力,通過電機正反轉實現開關動作,并同時輸出閥位指示信號是一種高精度、高性能、高可靠性類產品HL型電動執行器33810R型電動執行器PSQ系列電子式電動執行機構主要零件材料及適用溫度、介質
|
材料代號 |
C(WCB) |
P(304) |
R(316) |
|
主要零件 |
閥體 |
WCB |
ZG1Cr18Ni9Ti |
ZG1Cr18Ni12Mo2Ti |
|
球體 |
2Cr13、(304) |
1Cr18Ni9Ti |
1Cr18Ni12MoTi |
|
閥桿 |
2Cr13 |
1Cr18Ni9Ti |
1Cr18Ni12MoTi |
|
閥座密封 |
增強聚四氟乙烯 、對位聚苯 、硬質合金鋼密封 |
|
填料 |
聚四氟乙烯 、柔性石墨 |
|
適用工況 |
適用介質 |
蒸汽、水、油品 |
硝酸堿類腐蝕性介質 |
醋酸類腐蝕性介質 |
|
適用溫度 |
聚四氟乙烯≤180℃,對位聚苯≤300℃,金屬密封≤425℃ | |
|
注:金屬硬密封;適用于高溫 Q941F電動調節球閥應用規范、耐磨及各種粉塵與固體顆粒介質的工況,具有良好的剪切、自潔功能
|
設計制造標準 |
法蘭尺寸標準 |
結構長度標準 |
檢驗試驗標準 |
|
GB/T12237-89 |
JB/T79-94 HG20592 |
GB12221-89 |
GB/T13927-89 JB/T9092-99 |
|
API6D |
ANSI B16.5 |
ANSI B16.10 |
JB/T9092-99 |
|
JPI7S-48 |
JIS B2212~2214 |
JIS B2002 |
API598 | |
|
Q941F電動調節球閥流量特性表
|
規格DN開度 |
不同開度下KV值 |
|
10 ° |
20 ° |
30 ° |
40 ° |
50 ° |
60 ° |
70 ° |
8 0 ° |
90 ° |
|
50 |
2 |
4 |
9 |
17 |
32 |
60 |
97 |
151 |
215 |
|
80 |
6 |
11 |
22 |
44 |
83 |
155 |
250 |
389 |
550 |
|
100 |
9 |
18 |
35 |
71 |
133 |
248 |
398 |
620 |
890 |
|
150 |
20 |
40 |
8/0 |
160 |
300 |
560 |
900 |
1400 |
2000 |
|
200 |
36 |
72 |
143 |
286 |
737 |
1002 |
1611 |
2506 |
3580 |
|
250 |
57 |
113 |
226 |
453 |
848 |
1582 |
2543 |
3955 |
5650 |
|
300 |
81 |
163 |
325 |
651 |
1220 |
2278 |
3661 |
5695 |
8100 | |
|
Q941F電動調節球閥技術性能參數
|
公稱通徑(DN) |
10 |
15 |
20 |
25 |
32 |
40 |
50 |
65 |
80 |
100 |
125 |
150 |
200 |
250 |
300 |
|
流量系數(KV) |
|
20 |
38 |
72 |
110 |
170 |
215 |
380 |
550 |
890 |
1400 |
2000 |
3580 |
5650 |
8100 |
|
公稱壓力PN(MPa) |
1.6 2.5 4.0 6.4 |
|
工作轉角 |
0-90° |
|
流量特性 |
二位開關型:全開或全閉式,調節型:近似等百分比 |
|
泄漏量(Q) |
軟密封:O泄漏符合ANSI B16.104 5級 硬密封:≤10-4×閥的額定容量 |
|
允許壓差 |
≤公稱壓力 |
|
電動執 行機構 |
型 號 |
HL系列、3810R系列、PSQ系列、HQ或QB型 |
|
電源電壓 |
AC220V、AC38V、DC24V |
|
作用形式 |
開關型/調節型(隔爆型) |
|
調節型 |
輸入信號 |
0~10mA、4~10mA 、1-5VDC |
|
輸出信號 |
0~10mA、4~10mA 、1-5VDC |
|
基本誤差 |
≤±2.5% |
|
回 差 |
≤±2.5% |
|
死 區 |
≤2% |
|
可調節比 |
250:1 |
|
開關型 |
電源電壓 |
AC220V/AC380V/DC24V |
|
反饋信號 |
有源觸點信號、無源觸信號 |
Q941F電動調節球閥外形尺寸
|
|

|
|

|
公稱通徑 DN(mm) |
尺 寸(mm) |
|
1.6MPa |
2.5MPa |
4.0MPa |
|
L |
D |
D1 |
B |
Z-фD |
L |
D |
D1 |
B |
Z-фD |
L |
D |
D1 |
B |
Z-фD |
|
50 |
203 |
160 |
125 |
16 |
4-18 |
216 |
160 |
125 |
20 |
4-18 |
216 |
160 |
125 |
20 |
4-18 |
|
65 |
222 |
180 |
146 |
18 |
4-18 |
241 |
180 |
145 |
22 |
8-18 |
241 |
180 |
145 |
22 |
8-18 |
|
80 |
241 |
195 |
160 |
20 |
8-18 |
283 |
195 |
160 |
22 |
8-18 |
283 |
195 |
160 |
22 |
8-18 |
|
100 |
305 |
215 |
180 |
20 |
8-18 |
305 |
230 |
190 |
24 |
8-23 |
305 |
230 |
190 |
24 |
8-23 |
|
125 |
356 |
245 |
210 |
22 |
8-18 |
381 |
270 |
220 |
28 |
8-25 |
381 |
270 |
220 |
28 |
8-25 |
|
150 |
394 |
280 |
240 |
24 |
8-23 |
403 |
300 |
250 |
30 |
8-25 |
403 |
300 |
250 |
30 |
8-25 |
|
200 |
457 |
335 |
295 |
26 |
12-23 |
502 |
360 |
310 |
34 |
12-25 |
502 |
375 |
320 |
33 |
12-30 |
|
250 |
533 |
405 |
355 |
30 |
12-25 |
586 |
425 |
370 |
36 |
12-30 |
|
|
|
|
|
|
300 |
610 |
460 |
410 |
30 |
12-25 |
648 |
485 |
430 |
40 |
16-30 |
|
|
|
|
|
|
350 |
686 |
520 |
470 |
34 |
16-25 |
762 |
550 |
490 |
44 |
16-34 |
|
|
|
|
|
|
400 |
762 |
580 |
525 |
36 |
16-30 |
838 |
610 |
550 |
48 |
16-34 |
|
|
|
|
|
|
450 |
864 |
640 |
585 |
40 |
20-30 |
914 |
660 |
600 |
50 |
20-34 |
|
|
|
|
|
|
500 |
914 |
705 |
650 |
44 |
20-34 |
991 |
730 |
660 |
52 |
20-41 |
|
|
|
|
| | |
電動球閥相關產品: