詳細內容:3610RXB電子式執行器結構特點和應用范圍
R系列角行程電子式電動執行器,是以220V交流單相電源作為驅動電源,接受來自計算機、調節器或操作器的4~20mA d. c., 或者 1~5V d. c. 控制信號來運轉的全電子式執行機構。機內有伺服系統,無需另配伺服放大器;關鍵部件“控制器”采用先進的混合集成電路,并用樹脂澆鑄固化,經老化處理,可靠性高、防潮、防震;采用底座、曲柄方式安裝時,曲柄零點的位置可在0~360℃內任意確定,此外,執行器具有過載保護、溫度保護及力矩開關保護三項保護功能。其控制精度高,是具有高可靠性的產品,可與各種角行程調節機構組合成角行程電動調節閥。
3610RXB電子式執行器 型號
|
類型 |
型號 |
輸出力矩N·m |
動作時間S/90° |
最大轉角 |
|
普通型 |
3610RSA-02 |
20 |
8.5 |
90° |
|
3610RSA-05 |
50 |
17 |
|
3610RSB-10 |
100 |
18 |
|
3610RSB-20 |
200 |
36 |
|
3610RSC-30 |
300 |
24 |
|
3610RSC-50 |
500 |
42 |
|
3610RSC-60 |
600 |
48 |
|
3610RSD-100 |
1000 |
30 |
|
3610RSD-150 |
1500 |
42 |
|
隔爆型 |
3610RXB-10 |
100 |
18 |
|
3610RXB-20 |
200 |
36 |
3610RXB電子式執行器技術參數和性能指標
3610RXB電子式執行器執行器主要技術參數
|
電源 |
220±10%a.c. 50Hz |
開度信號 |
4-20mA d.c. |
|
驅動電機 |
交流可逆流單相齒輪減速電機 |
控制限位開關 |
開側、閉側 |
|
控制信號 |
4-20mA d.c.,1-5Vd.c. |
保護等級 |
Ip55 |
|
轉角檢測 |
精密導電塑料電位器 |
安裝形式 |
任意 |
|
耗電功率 |
A型 |
50VA |
安裝形式 |
2-PF1/2(普通A、B、C型) 2-PF3/4(防爆型、普通D型) |
|
B型 |
150VA |
配線 |
信號線屏蔽并與電源線隔離 |
|
C型 |
220VA |
防爆標志 |
ExdⅡBT4 |
|
D型 |
350VA |
允許環境溫度℃ |
普通型不帶空間加熱器和防爆型 |
-10~+60 |
|
帶空間加熱器 |
-35~+60 |
|
分辨率 |
<0.4% |
環境氣體 |
無腐蝕性氣體 |
|
調整范圍 |
零點 |
±25% |
允許振動 |
1.5G以下 |
|
轉角 |
20%~100% |
相對溫度 |
普通型95%以下,防爆型45%~85% |
3610RXB電子式執行器性能指標
|
項目 |
指標值 |
|
基本誤差% |
±1.0 |
|
回差% |
1.0 |
|
死區% |
0.8~1.0 可調到0.4 |
|
分辨率% |
<0.4 |
|
調節范圍 |
零點±25&,行程2%~100% |
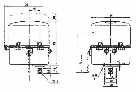
3610RXB電子式執行器外形尺寸
3610RXB電子式執行器外形尺寸圖
|
型號 |
D1 |
D2 |
H1 |
H2 |
h1 |
h2 |
d1 |
d2 |
d3(區) |
□J |
K |
n |
M |
W |
Y |
R |
重量kg |
|
3610RSA |
225 |
260 |
185 |
120 |
65 |
30 |
90 |
70 |
55 |
□16 |
12 |
4 |
M8 |
56 |
200 |
φ160 |
7 |
|
3610RSB |
225 |
290 |
225 |
155 |
65 |
30 |
90 |
70 |
55 |
□21 |
12 |
8 |
M8 |
68 |
225 |
φ320 |
12 |
|
3610RXB |
270 |
310 |
275 |
175 |
65 |
30 |
90 |
70 |
55 |
□21 |
12 |
8 |
M8 |
68 |
265 |
φ320 |
21 |
|
3610RSC |
335 |
380 |
265 |
165 |
85 |
35 |
125 |
102 |
70 |
□32 |
18 |
4 |
M10 |
80 |
260 |
φ320 |
42 |
|
3610RSD |
470 |
520 |
390 |
120 |
85 |
50 |
150 |
125 |
85 |
□41 |
24 |
4 |
M12 |
65 |
365 |
φ400 |
150 |
注:表中H2是拆卸護罩所必須的尺寸,R是手動操作所必須的尺寸,在設計安裝時應予以考慮。

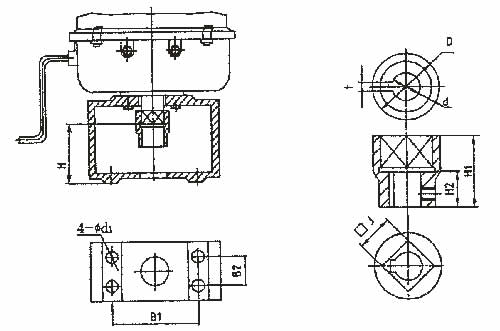
3610RXB電子式執行器支架配套表
角行程執行器與蝶閥直接連接的支架和連接套如圖所示,您在配套閥門時,應按閥門的允許
壓差計算出推力并要保證執行器輸出力大于閥門開關時所需的最大力,表中配套蝶閥口徑僅供參
考。

|
型號 |
蝶閥口徑 |
支架代號 |
H |
d |
B1 |
B2 |
d1 |
t |
H1 |
H2 |
D |
□J |
|
RSA-05 |
50-100 |
RA1 |
62 |
φ14 |
75 |
34 |
φ12 |
4 |
43 |
20 |
φ32 |
16 |
|
RSA-05
RSB-10、20 |
125-200 |
RB2 |
62 |
φ18 |
110 |
34 |
φ12 |
6 |
50 |
25 |
φ32 |
16 |
|
63 |
35 |
φ41 |
21 |
|
RSB-10、20 |
250-350 |
RB3 |
70 |
φ24 |
130 |
40 |
φ14 |
6 |
63 |
35 |
φ43 |
21 |
|
RSC-30 |
250-350 |
RC3 |
70 |
φ24 |
130 |
40 |
φ14 |
6 |
72 |
35 |
φ60 |
32 |
|
RSC-30、50、60 |
400-500 |
RC4 |
78 |
φ30 |
150 |
60 |
φ18 |
8 |
78 |
40 |
φ78 |
32 |
3610RXB電子式執行器外形尺寸圖
|
型號 |
h1 |
h2 |
h3 |
h4 |
L1 |
L2 |
L3 |
L4 |
L5 |
L6 |
L7 |
L8 |
R |
R1 |
R2 |
H2 |
Y |
重量kg |
|
3610RSA |
56 |
120 |
15 |
289 |
100 |
220 |
250 |
200 |
50 |
21 |
100 |
130 |
φ160 |
φ16 |
4-φ13 |
135 |
200 |
14 |
|
3610RSB |
68 |
120 |
15 |
316 |
120 |
220 |
250 |
240 |
50 |
21 |
100 |
130 |
φ160 |
φ16 |
4-φ13 |
135 |
225 |
21 |

3610RXB電子式執行器帶底座、曲柄安裝方式尺寸圖
|
型號 |
h1 |
h2 |
h3 |
h4 |
L |
L1 |
L2 |
L3 |
L4 |
L5 |
L6 |
L7 |
L8 |
L9 |
L10 |
R |
R1 |
R2 |
H2 |
重量kg |
|
3610RSC |
80 |
190 |
20 |
358 |
260 |
150 |
320 |
380 |
295 |
55 |
23 |
180 |
220 |
335 |
415 |
φ320 |
φ18 |
4-φ14 |
165 |
64 |

3610RXB電子式執行器帶底座、曲柄安裝方式尺寸圖
|
型號 |
h1 |
h2 |
h3 |
h4 |
L |
L1 |
L2 |
L3 |
L4 |
L5 |
L6 |
L7 |
L8 |
R |
R1 |
R2 |
H2 |
D |
重量kg |
|
3610RSD |
80 |
305 |
45 |
310 |
365 |
170 |
390 |
464 |
390 |
85 |
25 |
180 |
121 |
φ320 |
φ18 |
4-φ14 |
285 |
470 |
165 |

3610RXB電子式執行器 訂貨須知
訂貨時應詳細說明以下條件:
更多調節閥附件的相關產品: